摘要:我公司是生產拖拉機變速箱齒輪的專業廠家,當前農機市場行情表明,大中馬力拖拉機成為今后發展趨勢,大批量生產大中馬力拖拉機齒輪才能適應市場的發展,本文介紹了大中馬力拖拉機齒輪中一種典型圓柱直齒雙聯齒輪的加工工藝,我們經過反復試驗,多次改進,最后在通用機床設備上采用合理工裝,選用合適刀具,以車削加工代替磨削加工,提高了加工效率,穩定了產品質量。
關鍵詞:圓柱直齒雙聯齒輪普通車床以車代磨齒圈圓跳動
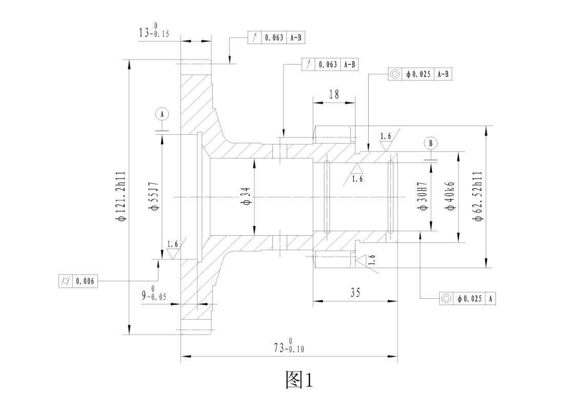
如圖1中可以看出,該齒輪內孔為臺階孔,且內孔Φ30H7于Φ55J7及外圓Φ40k6同軸度要求0.025mm。在熱后加工臺階內孔時,如何保證內孔同軸度要求,同時又能保證兩齒圈圓跳動符合圖紙要求成為工藝控制的關鍵。


此圓柱直齒雙聯齒輪加工工藝如下:
下料→鍛造毛坯→正火→粗車齒坯→精車齒坯(內孔為基準)→制齒(內孔為基準)→加工Φ34、Φ55J7(留磨量)內孔→熱處理(滲碳處理)→磨內孔及外圓→成品檢驗→包裝入庫。
在粗車齒坯時,Φ34、Φ55J7內孔暫不車出,等剃齒后,再加工內孔Φ34、Φ55J7及其它尺寸,內孔拉成通孔(Φ30H7留熱后磨量),以內孔為基準精車齒坯,為保證熱后內孔于熱前內孔基準統一,,在精車后制齒前以內孔為基準粗磨兩齒部外圓,統一尺寸,尺寸公差控制在0.02mm以內,徑跳不大于0.01mm,熱后用同心套以兩齒部外圓為基準來加工內孔Φ30H7、Φ55J7保證同軸度要求0.025mm(同心套結構如圖2),由于熱前熱后基準統一,在磨削內孔Φ30H7、Φ55J7的同時也保證了兩齒圈圓跳動符合圖紙要求。
此加工工藝生產效率低,且加工精度不穩定,原因有以下幾個方面:
1.粗磨兩齒部外圓必須在制齒前,兩輪齒數為單齒,制齒后磨外圓無法測量其直徑最大處,制齒時齒頂容易擠出毛刺,制齒后工序很多,易磕碰。毛刺、磕碰對同心套裝夾有影響,從而影響兩齒圈圓跳動(節跳)。
2.由于齒輪結構的原因,齒部外圓熱處理后變形不一樣,造成熱后粗磨的齒部外圓大小不一,需多作幾個同心套,來消除間隙,降低了生產速度,磨內孔時無法一次裝夾磨削兩個臺階內孔,兩次調頭裝夾外圓加工內孔時,非高精度基準轉換,加工精度有所喪失。
3.在磨削小端內孔時,由于Φ30H7內孔處卡簧槽外側到齒輪一端面有尖角出現,滲碳處理時(滲碳深度為0.8~1.2mm),整個尖角被滲透,硬度高,在磨削此處時,砂輪容易脫粒,需勤修砂輪來保證內孔尺寸。
根據質量和生產數量的需求,必須改變現行的加工工藝,以提高工件質量、生產效率、降低加工成本才能滿足用戶及市場的的要求。結合公司的設備狀況,我們經過反復試驗,多次改進,終于在CM6140精密普通車床上用以車代磨的加工方法解決了這一問題,改進加工工藝如下:
熱處理前除不用粗磨外圓外其余工藝與原來一樣,熱處理后,首先,熱后以內孔Φ30H7為基準,磨削外圓Φ40k6到成品尺寸,由于Φ40k6外圓于內孔在同一端,基準轉換后,精度損失低,然后在普通車床上,卡盤用節圓棒夾大端節圓,小端Φ40k6處裝軸承架在中心架上,選用抗震性強的陶瓷刀具車削Φ30H7內孔到成品尺寸,以車削代替磨削加工能夠滿足加工需要,這樣保證了Φ40k6外圓于Φ30H7內孔同軸度要求,其次,小端ΦΦ40k6外圓用車床主軸莫氏錐度孔固定的專用芯軸定心,專用芯軸于齒輪Φ40k6配合處為帶一定錐度的光孔,工件裝上后小端Φ40k6處形成無間隙配合,(見圖3)大端夾節圓定心加工Φ55J7內孔,保證了兩端臺階孔同軸度1.專用芯軸2.卡盤3.節圓棒4.工件

要求,此時兩齒圈圓跳動(節跳)也能符合圖紙要求。
結論
經過這次工藝改進,在通用設備上,采用適當的工裝,選用合適的刀具,以車削加工代替磨削加工,合理調整車削余量和機床轉速,加工效率大大提高。這也為其它類似產品的生產提供了有益的借鑒。根據本工藝成功的經驗,我公司已在多個品種的產品上進行了推廣應用,均取得顯著的效果。
參考文獻:
1.楊黎明.機床夾具設計手冊北京:國防工業出版社,1996.5
2.齒輪手冊編委會.齒輪手冊北京:機械工業出版社,2002.5
作者簡介:
高泊依,男,1954年出生,大專學歷,高級工程師,從事公司管理工作。
栗志豐男助理工程師從事公司技術質量管理工作。聯系電話:13837244834
黃利敏女助理工程師從事公司技術質量管理工作。
