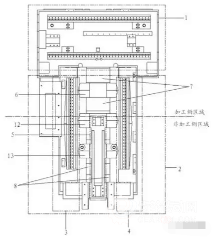
包括 :X軸底座、Z軸底座、Z軸導軌左支 撐體、Z 軸導軌右支撐體、橋式橫撐、加工側落屑 通道、非加工側落屑通道、全貫穿底座空腔、Z 軸 驅動、Z 軸驅動安裝體和鏈板排屑器。臥式全貫穿中央驅動機床底座結構,通 過創新的結構阻斷切削熱向底座的傳導和超大流 量切削液的快速回流,最大程度降低了機床加工 過程中底座的溫升和與其它部件的溫度差異,減 小了底座熱變形,保證了機床加工精度。
背景技術
臥式加工中心是一種可實現多軸聯動加工的高端數控機床,廣泛用于汽車、航天 航空、軍工領域的各類復雜零件的機械加工,為不斷減小機床自身熱變形、提高機床加工精 度,機床制造商一直致力于降低機床各部件的溫升和溫度差異,切屑作為機床加工過程中 的最重要熱源,實現其快速排除機床是解決上述問題的關鍵,通過不同的底座結構,實現切 屑快速排除機床是最重要的方法。 現有的臥式加工中心底座,有 2 種結構 :

第一種(如圖 1)底座結構 :在底座(1)的 Z 軸驅動(4)兩側,開 2 個貫穿整個底座的方 腔(2)(3),將螺旋排屑器(5)(6)置于方腔中,這一結構,落屑和排屑空間小,切削熱在狹 窄的排屑通道內,通過各金屬件向底座傳導,且不利于超大流量冷卻的切削液回流。

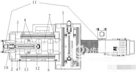
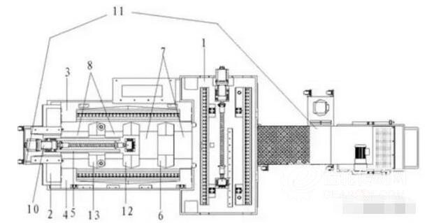
第二種(如圖 2)底座結構 :在底座(1)后部的加工側,設置一個半截大空腔(2),將 加寬的鏈板排屑器(5)置于空腔(2)內。在底座(1)前部的非加工側,采用 2 個螺旋排屑器 (3)(4),將非加工側飛濺的零星切屑導入鏈板排屑器(5),這一結構,相比第一種結構,提升 了機床排屑能力,實現了加工側切屑和切削液的迅速排除底座,但是,其多個排屑器組合和 底座(1)內部的前后階梯設計,增加了結構的復雜程度和機床防護設計、制造和后期維護的 難度,非加工側,飛濺的切屑仍然會將切削熱通過排屑器等金屬零件向底座傳導。
設計目的
本技術是提供:一種臥式全貫穿中央驅動機床底座結構,通過 氣動方式實現刀架的鎖緊和松開,通過伺服電機和同步帶輪實現刀架的準確換刀,具有可 靠性能高、定位精確、結構緊湊、轉位速度快、噪音小,價格低廉等優點,同時在小型數控機 床的應用及普及上有著廣泛的市場前景。

為解決上述技術問題,采用的技術方案是 :
其包括 :X 軸底座、Z 軸底座、Z 軸導軌左 支撐體、Z 軸導軌右支撐體、橋式橫撐、加工側落屑通道、非加工側落屑通道、全貫穿底座空 腔、Z 軸驅動、Z 軸驅動安裝體和鏈板排屑器,

所述 Z 軸導軌左支撐體和所述 Z 軸導軌右支撐 體分別設置于所述 Z 軸底座內的兩側,所述橋式橫撐包括第一橫撐、第二橫撐和第三橫撐, 所述 X 軸底座與所述 Z 軸底座相連接,所述橋式橫撐的兩端分別與所述 Z 軸導軌左支撐體 的內側和所述 Z 軸導軌右支撐體的內側相連接,

所述第二橫撐到所述 X 軸底座之間的區域 為加工側區域,所述第二橫撐到所述 Z 軸底座底部之間的區域為非加工側區域,所述第一 橫撐與所述 X 軸底座之間和所述第一橫撐與所述第二橫撐之間設置有所述加工側落屑通 道,所述第三橫撐與所述 Z 軸底座底部之間設置有所述非加工側落屑通道,

所述 Z 軸驅動安裝體的上部設置于所述第二橫撐和所述第三橫撐上,所述 Z 軸驅動安裝體的下部設置于所 述 Z 軸底座的底部上,所述 Z 軸驅動設置于所述 Z 軸驅動安裝體上,所述鏈板排屑器的一端 貫穿于所述全貫穿底座空腔內并延伸至所述 Z 軸底座的外部。
