國內首臺6米滾齒機在機旁置式大齒輪測量系統研制成功




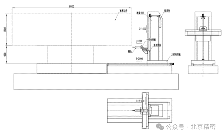
日前,由哈爾濱精達測量儀器有限公司和長江(宜昌)科技有限公司聯合研發的目前國內最大的齒輪機床在機旁置式測量系統通過驗收,取得滿意效果。該測量系統利用機床本身的主軸作為測量轉臺,在機床旁邊增加測量單元,完成被加工齒輪的齒廓、齒向、齒距等齒輪單項誤差的測量。有效解決了超大齒輪的測量問題,加工完成的齒輪不需卸下進行二次安裝直接測量,提高效率,節省成本,并提高了我國齒輪加工機床的功能和檔次,具有較高使用價值。

測量單元采取機床旁置式安裝,由X、Y、Z相互正交的坐標軸、測頭系統、控制系統等組成,重點實現了機床數控系統與測量單元數控系統完美結合,相互通訊握手,完成測量任務軌跡控制,由測量單元進行數據采集及齒輪誤差評值處理。


下圖是對比對齒輪的檢驗結果。

